Hledáte prostorný byt v centru Ostravy, který by splnil vaše potřeby bydlení nebo investování? Tato nabídka by mohla být právě to, co hledáte.
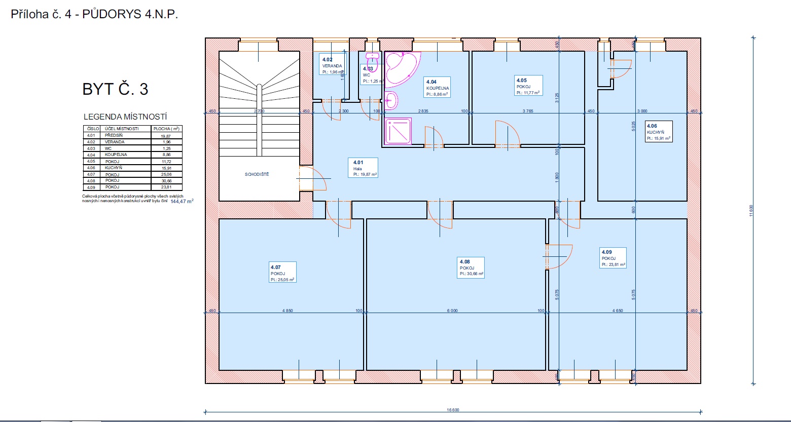
Nabízíme k prodeji byt 4+1, který se nachází ve 3. patře cihlového domu z 30. let a to na ulici Poděbradova.
Technické parametry a vybavení:
Benefity:
Financování zajistíme .
Pro domluvení prohlídky či doplnění informací mě prosím kontaktujte.
Upozorňujeme, že vzhledem k rodinným vztahům v domě si majitel vyhrazuje právo vybrat kupujícího dle vlastních kritérií.

